Vente Appartement paris
2 800 200 € HAI - 196 m2 - 3 Chambres - Réf. 494

Vente Appartement
paris
2 800 200 € HAI
Prix Honoraires Inclus : 2 800 200 €
Honoraires : 3,09% TTC*
Prix Honoraires Exclus : 2 716 194 €
* Les honoraires d'agence seront intégralement à la charge de l'acquéreur
  • 5 Pièces
  • 3 Chambres
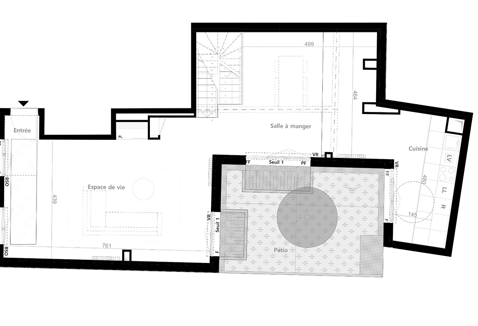
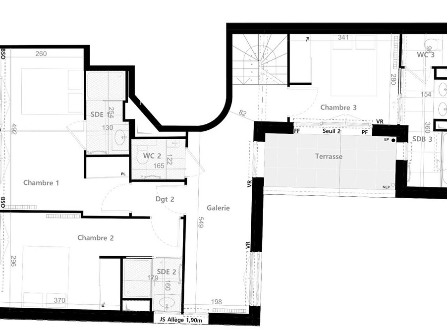
  • 196 m2

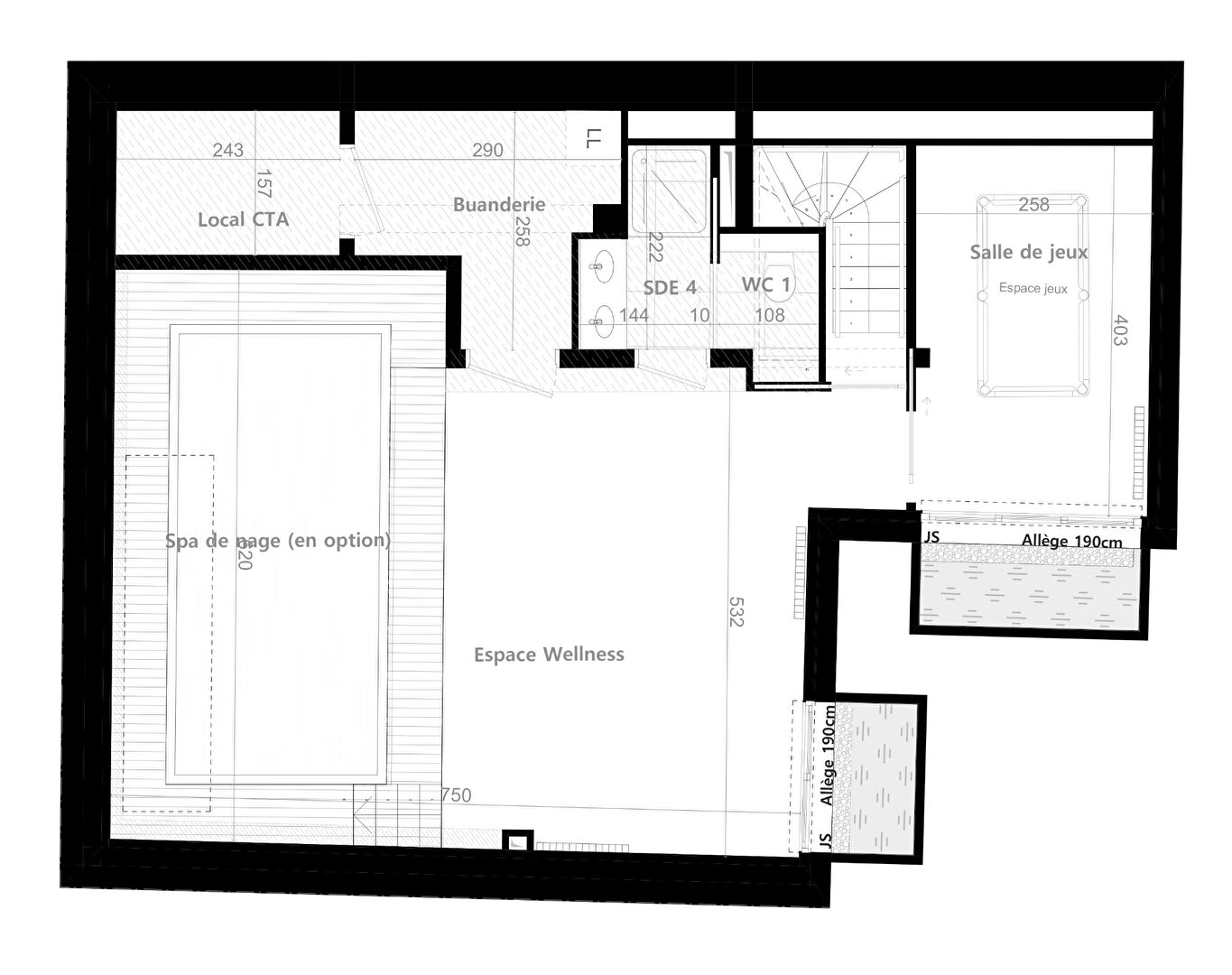
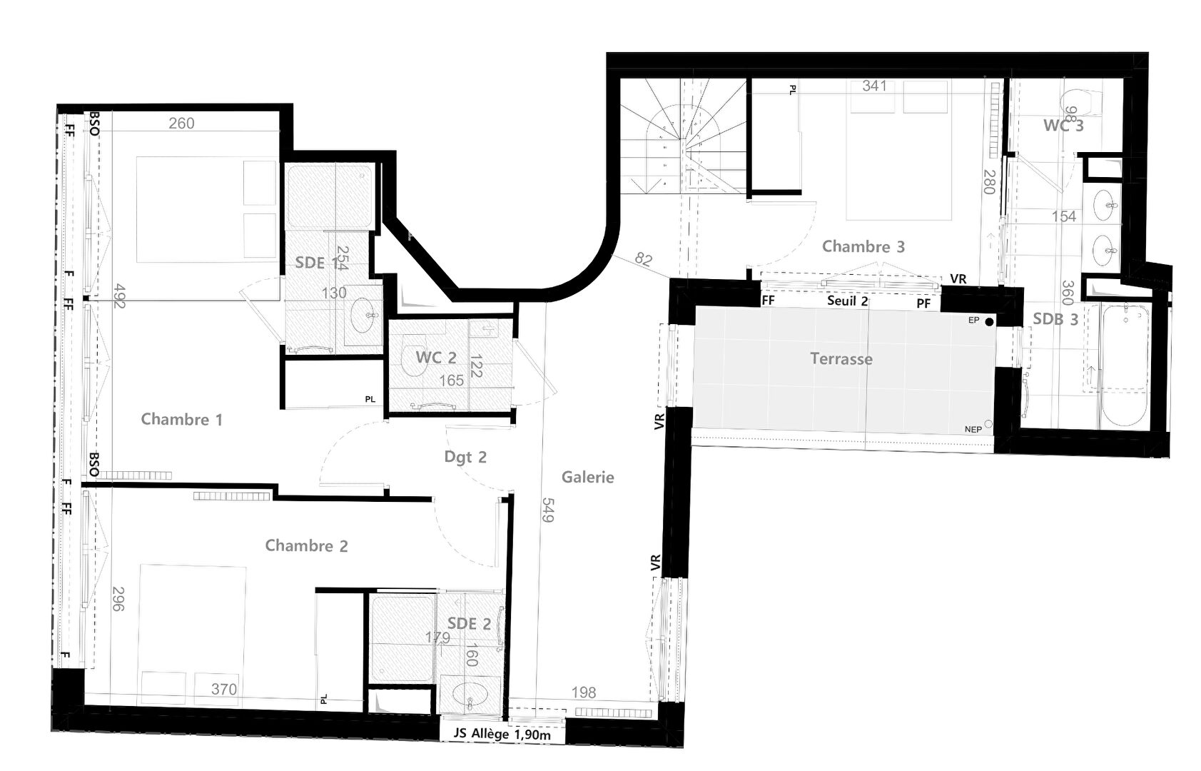
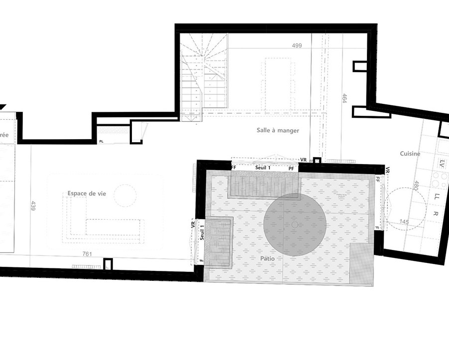
Alesia Appartement Neuf Triplex 5 pièce(s) de196 m2

T4 TRIPLEX - DERNIER APPARTEMENT DISPONIBLE - FRAIS DE NOTAIRE OFFERTS * - TRAVAUX EN COURS] - Idéalement situé à 150m du métro Alésia, des services et des commerces. Double adresse : 15 Villa d'Alésia et 101 bis rue d'Alésia. Plans et prestations haut de gamme et personnalisables. (3.09 % d'honoraires TTC à la charge de l'acquéreur.)
  • Référence : 494
  • Ville : paris
  • Transaction : Vente
  • Type de bien : Appartement
  • Prix HAI : 2 800 200 €
  • Surface : 196 m2
  • Etage du bien : RDC
  • Nbr d'étages : 4
  • Nbr de pièces : 5
  • Nbr de chambres : 3
Performance énergétique (en KWh/m2/an)
Dpe
Performance climatique (en Kg éq CO2/m2/an)
Ges
Montant estimé des dépenses annuelles d’énergie pour un usage standard : année de référence 0 - de 500€ à 0€
%
%

Vos mensualités

*apport calculé sur une base de 20%

Informations non contractuelles, fournies à titre indicatif
75 - Paris
Montant En % du prix du bien
Emoluments notaire %
Copies & formalités notaire 800 %
Total notaire %
Droits de mutation 5.80%
Publicité foncière 0.10%
Debours 400 %
TVA (sur part notaire) %
Total %
Informations non contractuelles, fournies à titre indicatif
Contactez-nous
* champs obligatoires
BEUVE-MERY IMMOBILIER

17 rue de Liège - 75009 PARIS

Voir le téléphone
Nous contacter
  • Alerte email
  • Favoris 0
  • 0